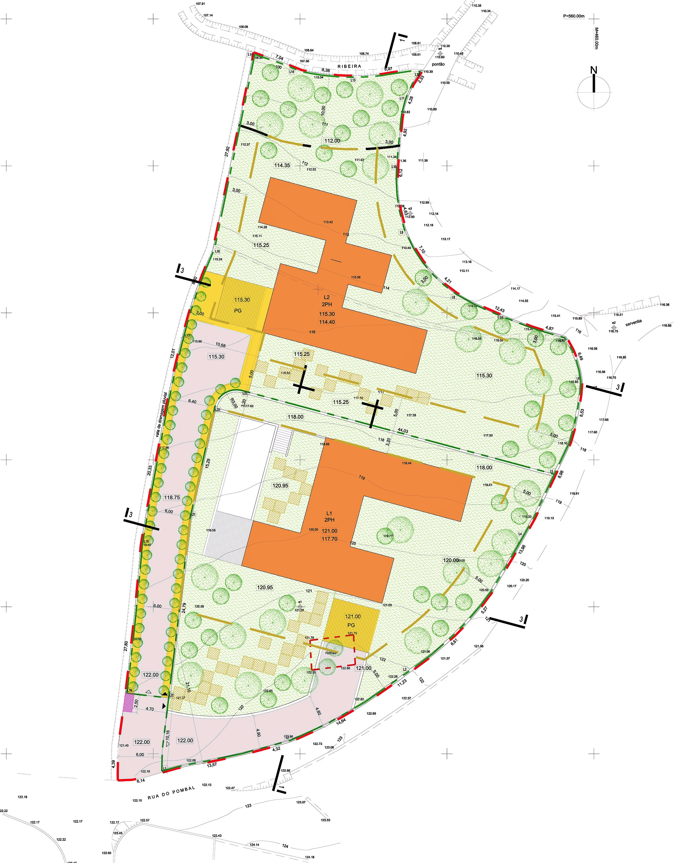
Loteamento 2 Moradias SintraÁrea de intervenção: 3.640 m2A.B.C. Habitação(2 fogos): 780 m2Promotor: Arona Investimentos, SA 🠐Voltar Relacionado